гр.Варна, ул. Студентска 1 А, вх.Б, ет.8, оф.26

2-стаен – Варна, Погребите

  • €104,300
Варна, Погребите
Продава
2-стаен – Варна, Погребите
Варна, Погребите
  • €104,300

Описание

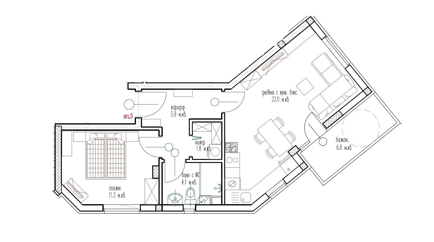
🏙 ДИРЕКТНИ ПРОДАЖБИ ОТ ИНВЕСТИТОР БЕЗ КОМИСИОННА!ЖИЛИЩНА СГРАДАPLISKA 2 🏡 АПАРТАМЕНТ5 ДВУСТАЕН Площ: 71 кв.м Цена: 104 300 000 евро Разсрочено плащане Изложение: ИзтокРазпределение:Дневен тракт, спалня, коридор, баня с тоалетна, килер и тераса.📞 За контакти: 0898 50 65 65________________________________________За сградата PLISKA 2е луксозна жилищна сграда с контролиран достъп, разположена в широкия център на гр. Варна.Проектът предлага 26 функционални апартамента двустайни, тристайни и четиристайни, с площи от 53 до 160 кв.м.📅 Начало на строителството: началото на 2026 г.________________________________________Технически характеристики и качество на изпълнение✅ Хидроизолация:Основите се изпълняват със системи SIKA, гарантиращи дълготрайна защита и устойчивост.✅ Тухлена зидария:Сградата ще бъде изградена с австрийски тухли Wienerberger Porotherm (25 N+F, 12 N+F) 100% естествен материал с отлични шумо- и топлоизолационни свойства.✅ Преградни стени между апартаментите:Трислойна система с индекс на шумоизолация до Rw = 57 dB.✅ Топлоизолация и мазилка:BAUMIT Интегрирана система с 10-годишна писмена гаранция от Баумит България ЕООД.✅ Фасада:Модерен дизайн с минерална мазилка BAUMIT, френски прозорци и стъклени парапети от закалено стъкло.Висок клас 5-камерна дограма.✅ Асансьор:Модерен електрически асансьор без машинно отделение.✅ Степен на завършеност на апартаментите: Машинно положена циментопясъчна замазка Фина гипсова мазилка BAUMIT Ratio 1000L Варо-циментова мазилка BAUMIT MPI 25 (в мокри помещения) Гранитогрес SIKA с хидроизолационна основа за балконите Блиндирана входна врата Ключове и контакти SCHNEIDER ELECTRIC✨ Елегантна визия. Висок клас материали. Директно от инвеститор.📞 0898 50 65 65

Адрес

  • Град Варна
  • Квартал Погребите

Детайли

  • ID на оферта: 11055
  • Цена: €104,300
  • Квадратура: 71 m²
  • Година на строеж: 2028
  • Тип имот: 2-стаен
  • Вид оферта: Продава
  • Етаж: 2
  • Етажи: 8
  • Вид строителство: Тухла
  • Цена кв.м.: 1469

Подобни имоти

Сравни имоти

Сравни
Силвия Велинова
  • Силвия Велинова